NB3 VERBOUW - interieur
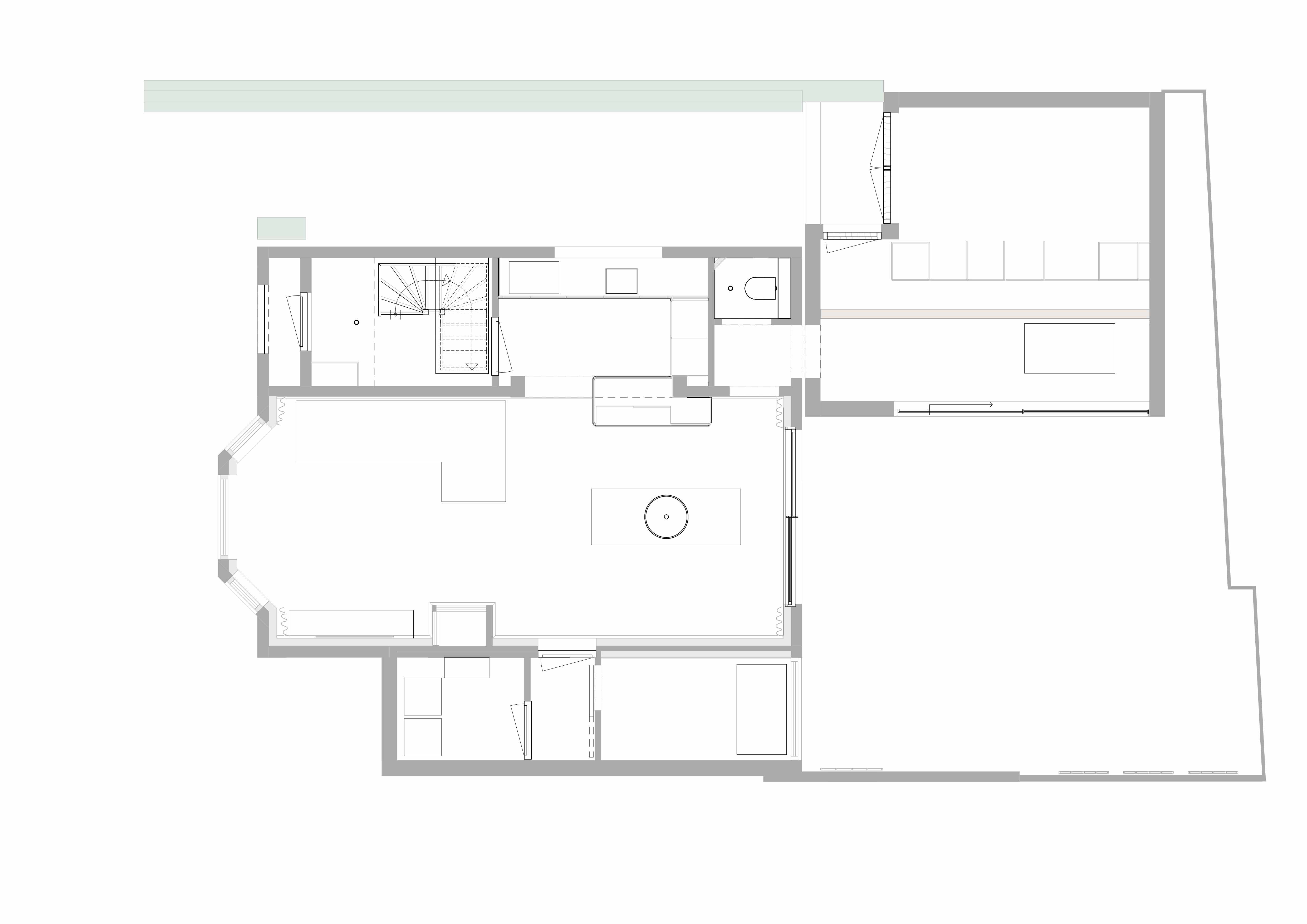
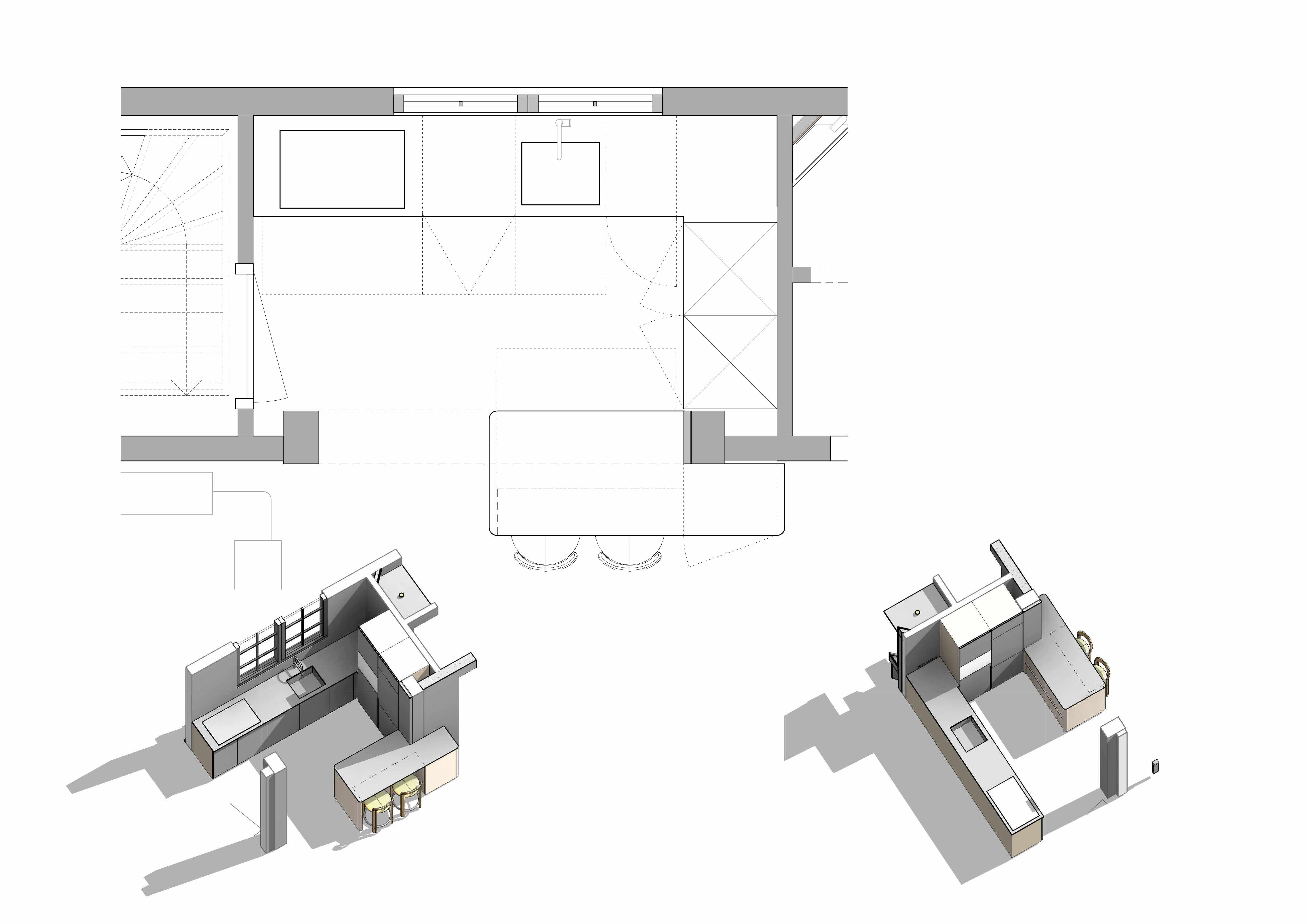
Het ontwerp betreft een verbouw van een bestaande woning in Heiloo. De achtergevel wordt gemoderniseerd met een minimalistische schuifpui. De interieur elementen worden opnieuw op elkaar afgestemd. Door een herindeling wordt de eerste verdieping voorzien van inloopkast als scheiding tussen de overloop en de hoofdslaapkamer.
Architect: DUNE architects
Aannemer: KOPS aannemers
Puienleverancier: Optimedia Nederland
Meubelmaker: Interieur Werk
Keukenbladen: RVSkeuken















.jpg?h=adec7feb7f61abfe5286015bb0059fd2)



